SUIVEZ-NOUS:

Produits
ACCUEIL > Produits
Presse flexo sans engrenage pour film plastique

Presse flexo sans engrenage pour film plastique

La presse flexo sans engrenage pour film plastique de HuiPeng est conçue pour l'impression de haute précision sur des matériaux de film plastique tels que le PE, le PP et le BOPP. En tant que fabricant, fournisseur et usine fiable en Chine, HuiPeng propose une technologie avancée d'asservissement sans engrenage pour garantir un enregistrement précis, une qualité d'impression stable et une efficacité de production élevée. Cette presse flexo sans engrenage pour film plastique est largement utilisée dans les emballages flexibles, offrant une vitesse rapide, une utilisation facile et des performances d'impression constantes pour les fabricants mondiaux d'emballages.

Plastic Film Gearless Flexo Press est une machine d'impression flexographique sans engrenage spécialement conçue pour les matériaux en film plastique. Elle adopte des servomoteurs pour entraîner directement les unités d'impression, éliminant ainsi le système de transmission à engrenages traditionnel, améliorant ainsi considérablement la stabilité opérationnelle, la précision de l'enregistrement et l'efficacité de la maintenance de la machine. Cet équipement est largement utilisé pour l'impression flexographique multicolore de haute qualité sur BOPP, PET, CPP et autres films plastiques, répondant ainsi à la demande de l'industrie moderne de l'emballage en matière d'impression à grande vitesse et de haute qualité.

Principales caractéristiques

Système d'entraînement servo sans engrenage
Les servomoteurs entraînent directement chaque unité d'impression, permettant un contrôle précis de la vitesse et de la position, améliorant la précision de l'enregistrement des plaques et réduisant l'usure mécanique et le bruit.

Convient à l'impression de films plastiques
Conçu professionnellement pour accueillir divers films plastiques (BOPP, PET, CPP, etc.), garantissant que le matériau du film est enroulé de manière stable et serrée autour du cylindre d'impression central, améliorant ainsi la cohérence de l'impression.

Impression multicolore haute efficacité
Plusieurs stations d'impression prennent en charge l'impression en quadrichromie ou plus multicolore, permettant d'obtenir des couches de couleurs complexes et des motifs délicats.

Production continue à grande vitesse
La structure de la machine et la servocommande permettent un fonctionnement stable à grande vitesse, répondant aux besoins d'une production à grande échelle.

Contrôle automatisé avancé
Équipée d'un panneau de commande numérique, de systèmes de tension et d'enregistrement automatiques, la machine est facile à utiliser, améliorant ainsi la précision et l'efficacité de l'impression.

Système de séchage et de durcissement efficace
La combinaison des technologies de séchage à air chaud, infrarouge ou UV garantit un séchage rapide de l'encre et garantit la qualité d'impression.

Conception respectueuse de l'environnement et économe en énergie
Prend en charge les encres écologiques à base d'eau et UV, à faible consommation d'énergie, conformes aux normes d'impression vertes.

Sur quels matériaux une presse flexo sans engrenage peut-elle imprimer ?

La machine est conçue pour une large gamme de matériaux d'emballage flexibles, notamment :

●BOPP (polypropylène à orientation biaxiale)

●PET (film polyester)

●CPP (polypropylène coulé)

●Films plastiques PE

●Films d'emballage laminés

Ces matériaux sont couramment utilisés dans les emballages alimentaires, les emballages de boissons et les emballages de produits de consommation.

Champs d'application

La presse d'impression flexographique sans engrenages pour films plastiques est largement utilisée dans l'industrie de l'impression d'emballages flexibles et convient à diverses applications d'impression de films plastiques.

Emballage alimentaire flexible
Impression pour emballages de snacks, sacs de produits surgelés, emballages de bonbons et autres films d'emballage flexibles de qualité alimentaire.

Emballage de boissons et de produits pharmaceutiques
Utilisé pour l'impression de matériaux d'emballage en plastique pour les boissons en bouteille, les sachets pharmaceutiques et les emballages de produits d'hygiène.

Emballages de vente au détail et promotionnels
Convient à la production de sacs à provisions imprimés, de films d'emballage promotionnels et d'emballages en plastique de marque.

Emballage industriel et d'étiquettes
Largement utilisé dans les matériaux d'emballage industriels, les étiquettes adhésives, les films protecteurs et les produits d'emballage laminés.

Avantages

Le servomoteur sans engrenage améliore la stabilité de l'équipement et la précision de l'enregistrement
Compatible avec divers films plastiques, garantissant une alimentation en matériau fluide et sans plis
L'impression multicolore à grande vitesse répond aux exigences de motifs complexes
Haute automatisation, facile à utiliser, améliorant l'efficacité de la production
Respectueuses de l'environnement, prenant en charge les encres écologiques à base d'eau et UV

Plastic Film Gearless Flexo Press est une machine avancée pour l'impression moderne d'emballages en film plastique, aidant les entreprises à améliorer la qualité d'impression des emballages et leur compétitivité sur le marché grâce à son efficacité, sa précision et ses avantages respectueux de l'environnement.

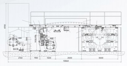
Description structurelle


Spécifications techniques

MODÈLE CHCl-600F-S CHC-800F-S CHC-1000F-S CHC-1200F-S
Largeur maximale du Web 650mm 850mm 1050 mm 1250mm
Largeur d'impression maximale 600 mm 800mm 1000mm 1200mm
Vitesse mécanique maximale 500 m/min
Vitesse maximale de pinting 450 m/min
Max.Dérouler/Revind Dia. φ800mm/φ1200mm
Type de lecteur Servomoteur complet sans engrenage
Longueur d'impression (répétition) 400-800mm
Alimentation électrique Tension 380V.50 HZ.3PH ou à préciser
Encre Encre à base d'eau ou encre à solvant
Gamme de substrats LDPE,LDPE,HDPE,BOPP,CPP,PET,Nylon,film respirant
Plaque photopolymère A préciser

FAQ

1. Qu'est-ce qu'une presse flexo sans engrenage pour films plastiques ?

Une presse d'impression flexographique sans engrenage pour film plastique est une machine d'impression flexo avancée conçue spécifiquement pour l'impression sur des films plastiques flexibles tels que BOPP, PET et CPP. Contrairement aux presses à engrenages traditionnelles, le système sans engrenage utilise des servomoteurs indépendants pour contrôler chaque unité d'impression, garantissant ainsi un repérage précis, un fonctionnement stable et une qualité d'impression supérieure.

2. La presse flexo sans engrenage pour films plastiques est-elle adaptée à une production à grande vitesse ?

Oui. Le système entièrement servocommandé assure un fonctionnement stable à grande vitesse. La structure centrale du tambour d'impression maintient le film plastique fermement fixé pendant l'impression, ce qui améliore la cohérence des couleurs et réduit le gaspillage de matériaux, ce qui le rend idéal pour la production d'emballages flexibles à grande échelle.

3. Quels types d'encres peuvent être utilisés dans cette machine d'impression flexographique ?

La machine prend en charge plusieurs types d'encre, notamment :

●Encres à base d'eau

●Encres à base de solvants

●Encres UV

Ces options permettent aux imprimeurs de répondre à différentes normes environnementales et exigences d’impression pour les emballages flexibles.

4. Comment le système de séchage améliore-t-il la qualité d’impression ?

La machine adopte un système de séchage inter-couleurs indépendant combiné à des technologies de durcissement à air chaud, infrarouge ou UV. Cela garantit un séchage rapide de l'encre entre les unités d'impression, évitant ainsi les bavures de couleur et améliorant la clarté et la durabilité des graphiques imprimés.

5. La machine prend-elle en charge les diagnostics et la maintenance à distance ?

Oui. La presse flexo sans engrenage pour films plastiques est équipée d'un système de diagnostic de pannes à distance. Les ingénieurs peuvent analyser à distance les données des équipements, identifier rapidement les problèmes et fournir une assistance technique, minimisant ainsi les temps d'arrêt des machines.

6. La machine peut-elle être personnalisée selon les exigences de production ?

Oui. En tant que fabricant professionnel de machines d'impression flexographique en Chine, HuiPeng peut personnaliser les configurations de machines en fonction des exigences du client, notamment :

●Largeur d'impression

●Nombre de couleurs d'impression

●Systèmes de séchage

●Systèmes de déroulement et de rembobinage

●Niveau d'automatisation

●Caractéristiques du produit optimisées


Balises actives: Presse flexo sans engrenage pour film plastique, fabricant de presse d'impression flexo, fournisseur de machines d'impression pour film plastique
envoyer une demande
Informations de contact
Pour toute demande concernant la machine d'impression flexo, la machine d'impression Stack Lexo, la presse flexo sans engrenage ou la liste de prix, veuillez nous laisser votre e-mail et nous vous contacterons dans les 24 heures.
X
Nous utilisons des cookies pour vous offrir une meilleure expérience de navigation, analyser le trafic du site et personnaliser le contenu. En utilisant ce site, vous acceptez notre utilisation des cookies. politique de confidentialité
Rejeter Accepter